Zvyšte šanci, že se zájemce na vaši nemovitost přijde podívat
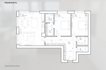
Zatímco fotky ukážou krásu nemovitosti, půdorys dává lidem odpovědi: Jak jsou rozmístěné místnosti? Kolik prostoru je v kuchyni? Kam se vejde jídelní stůl?


Půdorys je základ
Bez půdorysu si mnoho zájemců nedokáže prostor správně představit – a bez správné představy váhá s návštěvou nebo koupí.
Připravíme detailní 2D půdorysy i moderní 3D plánky, které:
zpřehlední dispozice a usnadní orientaci už na dálku
pomohou lidem plánovat rozmístění nábytku a vybavení
podpoří představu o tom, jak se v prostoru bude bydlet
zvýší důvěru, že inzerát je precizní a nic neskrývá
Chybí vám k dokonalosti takový 2D půdorys nebo 3D plánek?
Rádi vám je připravíme na míru.